defense media activity consolidation study
various locations, conus
Overview
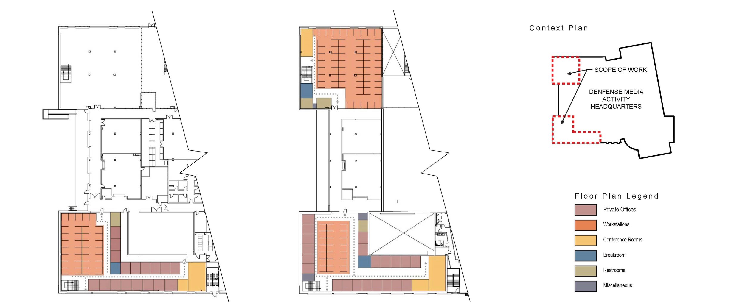
The Assistant to the Secretary of Defense for Public Affairs [ATSD(PA)] directed DMA to implement a significant transformation to modernize its functions, communications methods, technologies, and personnel, to meet the demands of today’s complex information environment. DMA is a DoD Field Activity under the authority, direction, and control of the ATSD(PA) with the mission of providing media services to the Department through multiple facilities at various installations both in the CONUS and OCONUS. The purpose of this project was to define the minimum facilities required to perform the METs at four CONUS sites in Virginia, Georgia, California, and Pennsylvania, evaluating those requirements against existing facilities assets, and to develop courses of action that are the most economical and effective means of satisfying the facilities requirements.
DMA senior leadership and key stakeholders were involved throughout the planning process. A kickoff meeting to review the project schedule, scope of work, and to gain an understanding of the goals and objectives from the meeting attendee’s perspective was held. A three day planning workshop followed, which included stakeholder interviews, the presentation of FCA and BFR findings, and face-to-face meetings to review the draft document. This resulted in obtaining support from DMA to progress to the final step.
Klavon earned a very good CPARS rating.
Option 1
Option 2
 
             
             
             
             
             
             
             
             
             
             
             
            